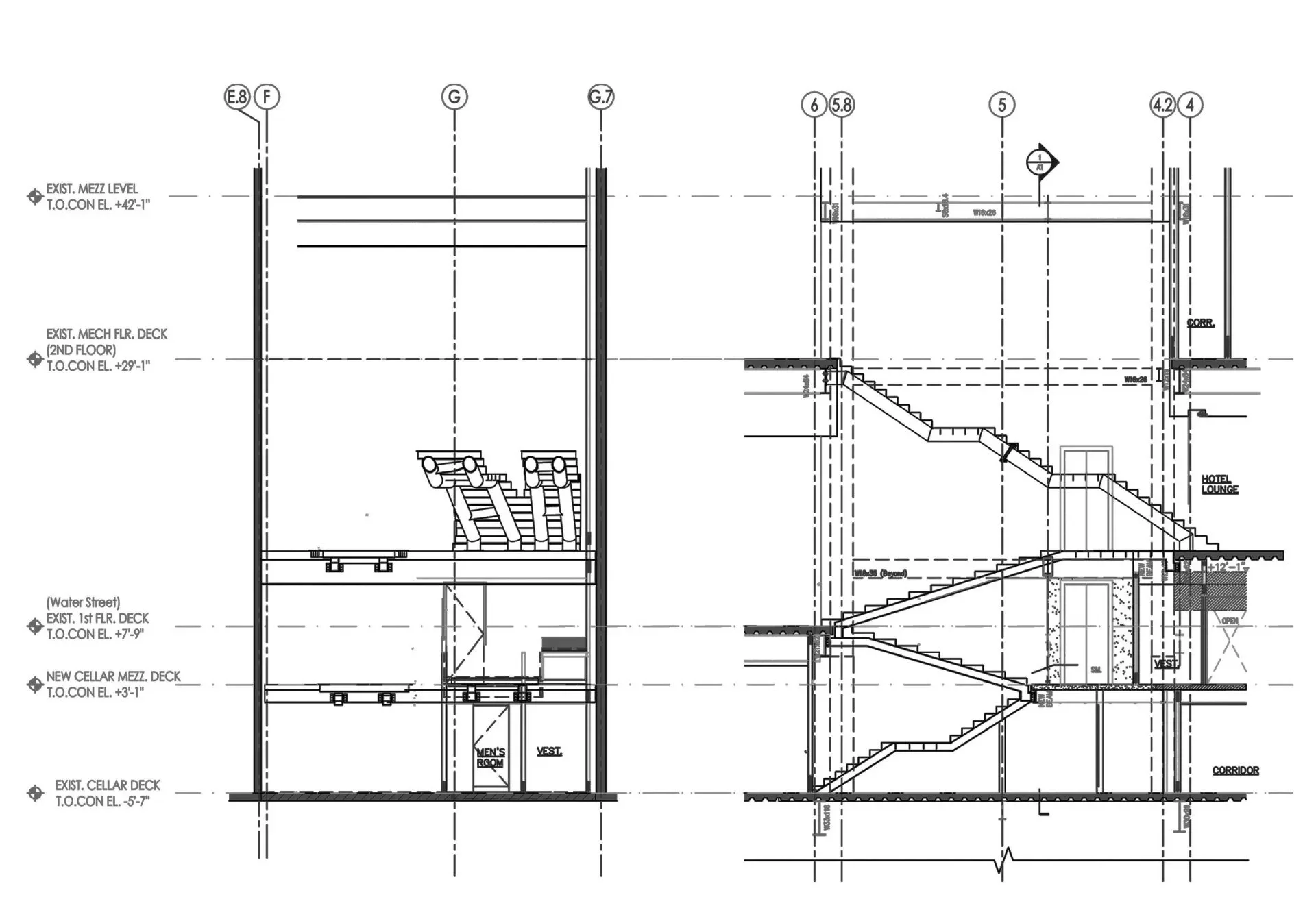
ANDAZ, WALL STREET

Workspace11 partnered with the Rockwell Group to design and build a four-story spiral staircase spanning a 60-foot vertical opening in the main lobby of the Andaz Wall Street Hotel.

The structure was supported by a concealed framework of 12-inch mitered and welded steel tubes. Curved ¼-inch aluminum side panels flowed upward with a continuously shifting pitch, creating a sculptural ascent that defines the lobby’s central space.