HYATT ANDAZ, WALL ST.

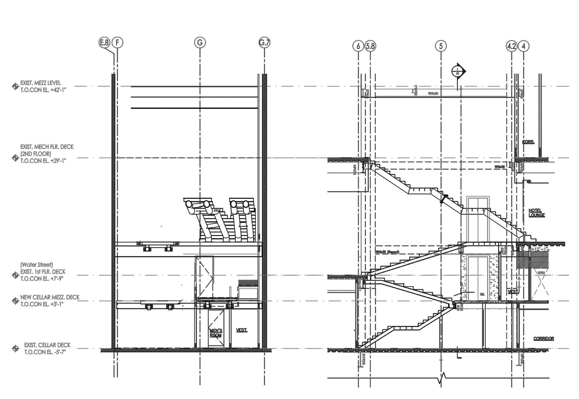
Workspace11 in conjunction with The Rockwell Group designed and built a four story curved spiral stairs that spans a 60ft clear opening in the man lobby of the Wall Street Andaz hotel. The entire structure is supported by 12” diameter mitered and welded steel tube frame that is hidden under the skin of the stairs. The ¼” aluminum side panels both curve to follow the plan of the stairs and roll outwards with a continuously altering pitch that flows up and outwards.
Workspace11 in conjunction with The Rockwell Group designed and built a four story curved spiral stairs that spans a 60ft clear opening in the man lobby of the Wall Street Andaz hotel. The entire structure is supported by 12” diameter mitered and welded steel tube frame that is hidden under the skin of the stairs. The ¼” aluminum side panels both curve to follow the plan of the stairs and roll outwards with a continuously altering pitch that flows up and outwards.