GRAND HYATT

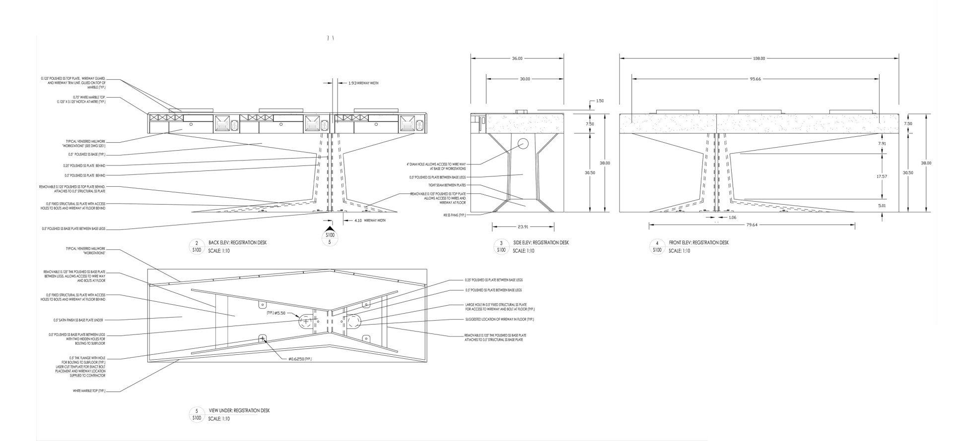
Workspace11 worked closely with Bentel & Bentel Architects and the Hyatt Hotel group to develop a series of integrated reception desks for the main lobby area of the hotel. Each desk is fabricated from cantilevering mirror polished stainless steel plates that support the stone tops. The electronics and computers are completely integrated into the steel, stone and the hardwood cabinetry.
Workspace11 worked closely with Bentel & Bentel Architects and the Hyatt Hotel group to develop a series of integrated reception desks for the main lobby area of the hotel. Each desk is fabricated from cantilevering mirror polished stainless steel plates that support the stone tops. The electronics and computers are completely integrated into the steel, stone and the hardwood cabinetry.